



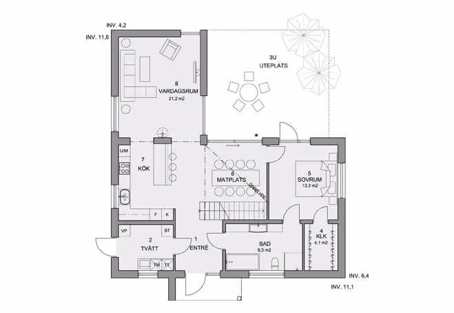
Funktionellt 2-planshus med härliga attribut t.ex. över 5 m till tak i matplatsen, masterbedroom och härliga glaspartier mot trädgård.
Fasader av puts och panel som tillsammans med stora fönster skapar ett stilrent och naturligt formspråk.
Invändigt på bottenplan en stor samvarodel med kök, matplats och vardagsrum. Luftig entré och centralt placerad trappa.
4 sovrum varav 3 på ovanvåningen, perfekt som ungdomsavdelning med eget allrum, klädkammare och badrum.
Är intresserad av att bygga ditt nya hus med Dast?
Vi har kontor både i Skåne/Vellinge och på Västkusten/Göteborg dit ni gärna får komma på besök!